Previous | Next | Discuss :: Free Advice (General Feng Shui)
DEAR CECIL:
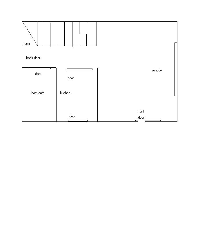
I'D LOVE YOU TO CLEAR MY DOUBTS UP.MY BEDROOM HAS A WALL PROTRUSION THAT CAN BE SEEN AS A POISON ARROW ( SEE ATTACH DRAWINGS).BESIDES THAT MY BEDROOM HAS SLOPING CEILING ( I HAVE PLACED TWO CHINESE FLUTES ON THE WALL) MY BED IS AGAINST THE SMALLEST WALL . BECAUSE PART OF MY BEDROOM IS IN THE EAST I'VE PLACED A METAL CLOCK AND
SIX CHINESE COINS HANGING ON THEWALL. MY FIRST QUESTION IS: HOW CAN I AVOID THE POISON ARROW? THE SECOND. HAVE I DONE THINGS ALRIGHT REGARDING THE EAST SECTOR?. MY THIRD QUESTION HAS TO DO WITH THE STAIRS.IN THE LANDING OF THE STAIRS I'VE PLACED A SMALL RECTANGULAR MIRROR AND IN THE EXTERIOR SIDE OF MY BATHROOM DOOR I'VE PLACED A BIG MIRROR ( ALMOST THE SIZE OF THE DOOR). IS THIS O.K.?
WE USE THE SPACE BELOW THE STAIRS AS STORE ROOM, THIS PLACE HAS TWO WOODEN SLIDING DOORS.THIS STAIR IS VERY DARK AS IT HAS NO NATURAL LIGHT, I'M PLANNING TO PLACE A RED CARPET TO ENHANCE THIS , APART FROM PLACING SOME ADDITIONAL LIGHT
AM I DOING THINGS RIGHT? SHOULD I CHANGE ANYTHING?
THANKS A LOT FOR YOUR ADVISE
|
|
[ Site Search | Forum Search | Picture Search | Site Map ] |
|
|
|
|
||
|
Help Desk: (65) 9785-3171 |
||
|
|
|
|
|
Highlights |
|
Extend your learning with Master Cecil Lee's Applied Feng Shui Made Easy Book. |
|
Site Navigation |
|
|
|
|
Google SiteSearch |
Sponsored Links |
|
|
![]()